Zum Kaufen
2 Familienhaus zu verkaufen – Naturnah
Dieses Objekt ist ein Referenzobjekt. Es steht nicht zur Verfügung.




















Inserat Details
Lage
Die Wohnung liegt in ruhiger Sackgassenlage im alten Ortskern von Weinolsheim. Der Ort ist umgeben von Weinbergen und Ackerflächen. Hier bietet sich die Möglichkeiten wie Radfahren, Joggen und Spaziergängen. Dabei tanken sie ihren Geist auf und bekommen neue Kraft für den nächsten Tag. Weinolsheim ist über die Landesstraßen 425 und 437 sowie die Kreisstraße 39 (Rheinhessenstraße) erreichbar. Der Öffentliche Nahverkehr wird durch den Omnibusverkehr Rhein-Nahe übernommen, der Weinolsheim mit der Linie 662 an Undenheim einerseits, sowie Nierstein bzw. Oppenheim andererseits anbindet. Am Morgen werden am Niersteiner Bahnhof Anschlüsse in Richtung Mainz für Pendler eingehalten. Am Nachmittag verkehrt die Linie 662 bis Oppenheim Verbandsgemeindeverwaltung.
Beschreibung
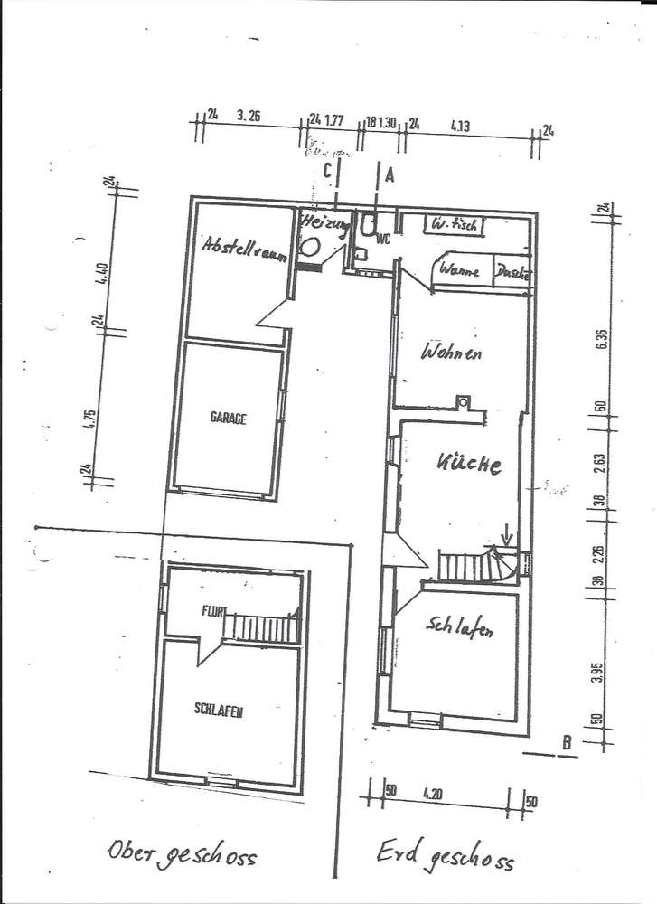
Das Haupthaus entstand 1958 und wurde über die Jahre durch Anbauten erweitert, so entstand das hier zum Verkauf angebotene 2-Familienhaus, beide 3 Zi-Wohnungen sind vermietet. Das Objekt steht auf einen 203 m² großen Grundstück und wurde 2018 komplett saniert. Das hier entstandene Haus in Haus Prinzip verleiht jedem Mieter seine Eigenständigkeit. Ein kleiner Innenhof steht den Mietern zur Verfügung. Die Wohnung im EG verfügt über eine Wfl. von ca. 70 m². Hinter der Wohnungstüre liegt die Küche, von hier aus geht es ins sep. Esszimmer, dann ins Wohnzimmer mit Kamin und dann weiter ins Vollbad mit Dusche und Wanne sowie Tageslicht. Der Kamin sorgt für eine Atmosphäre des Wohlbehagens. Von der Küche aus gelangen sie über eine schmale offene Treppe ins Obergeschoss. Hier befinden sich ein kleiner Flur und das Schlafzimmer. Vom Schlafzimmer gibt es einen Zugang in den Spitzboden. Diese helle und vom Grundriss her außergewöhnlich geschnittene 3 Zimmer Wohnung von ca. 85 m² Wfl. befindet sich im. OG des 2 Familienhauses und verfügt über einen eigenen Eingang außerhalb des Hauses. Außergewöhnlich ist der Grundrissdeshalb weil er U-förmig angelegt wurde. Dadurch dient das neben der Küche gelegene Zimmer als Durchgangszimmer. Dieses wird über ein Oberlicht mit Tageslicht ausgeleuchtet. Ein kleiner Flur verbindet das hintere Zimmer mit dem Durchgangszimmer und das auf der rechten Seite liegende Bad. Das Tageslicht Vollbad, weiß gefliestes, mit Fenster ist mit einer Wanne sowie Dusche ausgestattet. Ein Waschmaschinenanschluss ist ebenfalls vorhanden. Hinter der Wohnungstüre liegt, typisch amerikanisch, die Küche. Hier ohne Einbauten, sie bringen ihren eigenen Stil einfach mit. Links neben der Küche befindet sich das große Wohnzimmer mit Verbindung zum Wintergarten. Der Wintergarten wird mit Licht durchflutete und ausgestrahlt. Er ist ebenfalls mit einer elektrischen Beschattungsanlage sowie elektrisch öffnende Oberlichter ausgestattet. Als Abstellraum dient hier der Schuppen, der sich unter dem Wintergarten befindet. Hier sind auch die Abfall-/Papier- und Biotonnen untergebracht.