Zu Mieten
4-Zi Maisonette Wohnung mit EBK und Südbalkon***Feldrandlage*** sofort frei
Dieses Objekt ist ein Referenzobjekt. Es steht nicht zur Verfügung.





Inserat Details
Lage
DEXHEIM liegt in Mitten einer gut ausgeprägten Infrastruktur. Ärzte und Apotheken sind in Nierstein und Oppenheim in ca. 2 km Entfernung zu erreichen. Das Notarztzentrum befindet sich in Oppenheim in der Feuerwache. Die Anbindung mit öffentlichen Verkehrsmitteln erfolgt mit Bussen an das Schienennetz der DB.(Bahnhof Nierstein) Einkaufsmöglichkeiten sind in ca.2 km Entfernung mit Einkaufsmärkten in Nierstein und im Mittelzentrum Oppenheim. Im Ort selbst gibt es einen kleinen Laden, der von Backwaren bis zur Briefmarke ein Sortiment für den täglichen Bedarf führt. Der Kindergarten (Träger ev. Kirche) liegt mitten in Dexheim in ruhiger Lage Richtung Sport- und Spielplatz. Es gibt Kirchen beider Konfessionen mit aktiven Kirchengemeinden. Bekannt ist Dexheim für seinen idyllisch gelegenen Abenteuerspielplatz mit Grillplatz, der von weit entfernt Eltern und Kinder sowie Schulklassen und Kindergärten anzieht. Dexheim hat eine neue Sport- und Gemeindehalle, die das sportliche und kulturelle Angebot erweitert. „Kultur auf dem Hofe“ ist ein Magnet nicht nur für junge sondern auch für ältere Semester, die Kabarett und Musik vergangener Jahrzehnte , aber auch Klassik mögen. Ganz neu ist das „Weingut Historic“, das Wein und Geschichte in schönem Kellergewölbe mit Ausstellungen von Kelten- und Römerfunden verbindet.
Beschreibung
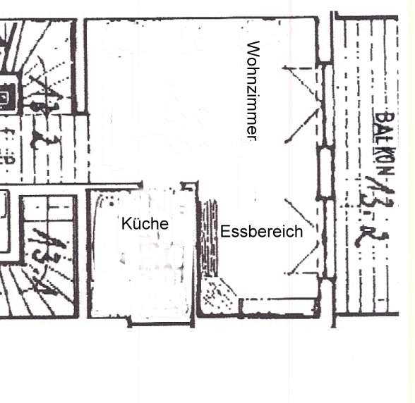
Wir möchten Ihnen heute eine 4 Zimmer Maisonetten Wohnung im 1.OG vorstellen. Die Wohnung befindet sich in Dexheim in einem 4 Parteienhaus Feldrandlage. Den neuen Mieter erwartet ein ruhiges und gepflegtes Haus. Die Aufteilung der Zimmer in der ca.80 m² großen Wohnung gliedern sich in ein Wohnzimmer mit Essbereich auf und Zugang zur Küche mit Einbauschränken versehen. Der Balkon, vom Wohnbereich aus zugänglich, hat praktisch den ganzen Tag über Sonne. Über eine weitere Treppe in der Wohnung gelangen Sie ins OG hier befinden sich die 3 Schlafräumen, die sehr ruhig gelegen sind, da sich das Haus am Ende einer Anliegerstr. befindet. Im OG der Wohnung befinden sich ebenfalls ein Tageslichtbad mit Badewanne und ein weiteres Tageslichtbad mit Dusche. Alle Böden in den Schlafräumen werden mit einem Laminat ausgelegt. Die Küche, die Diele sowie die Bäder sind hell gefliest. Das Wohnzimmer ist bereits mit einen Laminat versehen. Zu der Wohnung gehört noch ein Pkw-Außenstellplatz, dieser ist im Mietpreis enthalten.