Zu Mieten

Helle 3 Zi. Maisonette-Wohnung mit EBK und Gartengrundstück -ideal für Single und Pärchen-

Dieses Objekt ist ein Referenzobjekt. Es steht nicht zur Verfügung.

2Zimmer
96Wohnfläche
1Badezimmer
PropertyWohnzi.
PropertyWohnzimmer
PropertyBalkon
PropertyKind OG
PropertyKüche
PropertyTgl Bad
PropertySchlafzi. OG
PropertySZ OG
PropertySchlafzi._OG
PropertySchlafzimmer OG
PropertyGartenanteil
PropertyGrundriss
1
12

Inserat Details

Lage

Die ruhige Anliegerstraße mit Sackgassenbereich im „Neuen“ Teil von Oppenheim und die unmittelbare Nähe zu Geschäften des täglichen Bedarfs sowie Schule und Kindergarten machen dieses Objekt attraktiv und interessant. Oppenheim eine abwechslungsreiche Landschaft zwischen Ebene und Hügelland, mit dem mächtigen Rheinstrom und seinen verträumten Uferpartien, mit zwei Naturschutzgebieten im artenreichen Auwald, mit reizvoller Flur und Gartenland, mit weitem Hang und berühmten Weinlagen und mit freiem Blick ins Land. Zwei Ärztehäuser mit Facharztversorgung, alle gängigen Schularten mit Ganztagsbetreuungsangebot so wie vielfältige Möglichkeiten zu sportlichen Aktivitäten und reizvoller Naherholung machen Oppenheim als Ausflugsort und sprichwörtlichen sicheren Hafen in Rheinnähe attraktiv und beliebt bei Gästen und Neubürger. Oppenheim und seine idealen Verkehrsanbindungen: Bahnhof an der Strecke Mainz-Mannheim mit zahlreichen Zügen nach Mainz- Wiesbaden und in Richtung Worms- Ludwigshafen- Mannheim im Rheinland-Pfalz-Takt; Über B 9 und B 420 Anschluss an das Autobahnnetz (A60, 61, 63) Mit der Rheinfähre Richtung Darmstadt (15 km), Zum Flughafen Frankfurt (40 km)

AdresseGivry Allee 00
StadtOppenheim

Beschreibung

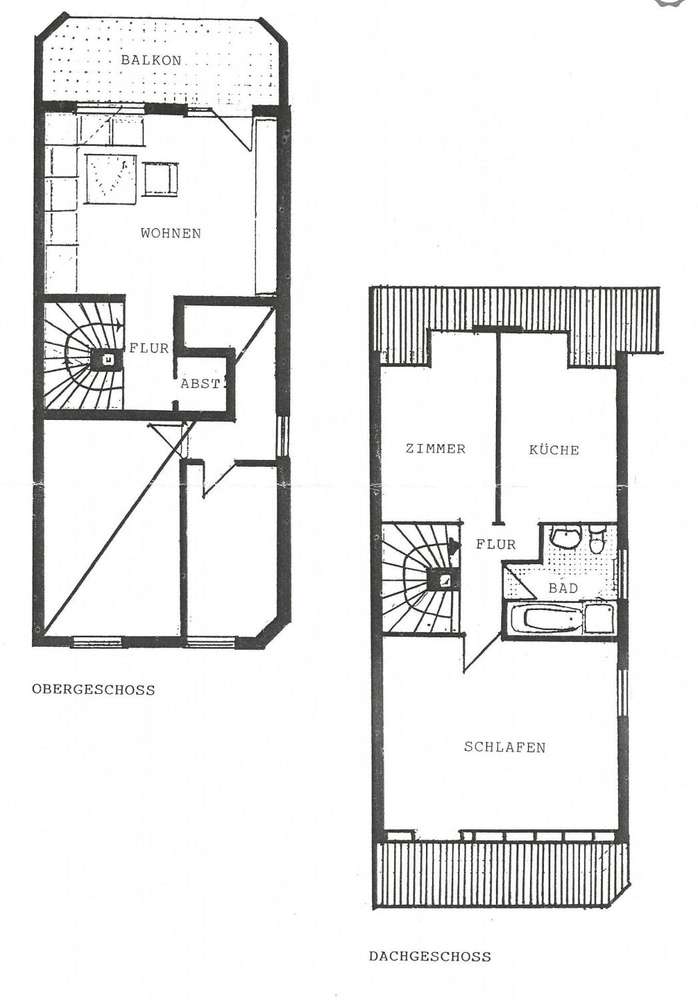
Das im Jahre 1991 erbaute MFH mit 2 Parteien, befindet sich in guter Lage von Oppenheim. Die 3-Zimmer-Maisonette- Wohnung erstreck sich über das 1.OG bis zum DG des Mehrfamilienhauses Am Hauseingang seitlich folgt ein Gartengrundstück mit Gartenhäuschen. Hinter der neuen Wohnungstüre liegt ein kleiner gefliester Flurbereich, hier könnte die Garderobe ihren Platz finden. Betritt man die im 1. Stock liegende Maisonette Wohnung ist man angenehm überrascht über die optimalen Lichtverhältnisse im Wohnzimmer. Das Wohnzimmer verfügt über einen Zugang auf dem vorgelagerten Balkon. Dieser ist nach Westen ausgerichtet. Eine Abstellkammer befindet sich ebenfalls im 1.OG, hier ist auch die Gastherme untergebracht. Im 2.Stock befinden sich die EBK mit Waschmaschinenstellplatz, die 2 Schlafzimmer und das Badezimmer mit Wanne und Dusche. Über eine Luke mit Auszugsleiter gelangen sie auf den Speicher, hier ist zusätzliche Lagerfläche vorhanden. Sie werden Ihn lieben und schätzen lernen Der Flur im 1.OG sowie der Wohnbereich und die Schlafräume sind mit Laminat in verschiedener Optik versehen. Die Wohnung ist sehr zentral gelegen. Eine Bushaltestelle, ein Friseur, Metzger sowie ein Bäcker sind fußläufig zu erreichen. Für den Gaumenschmaus, wenn Sie mal keine Zeit haben zu kochen, sorgen die in der Altstadt ansässigen Weinstuben und Restaurants. Zu der Wohnung gehört eine Gartenfläche, hier können sie nach der Arbeit Ihre Seele einfach baumeln lassen. Ein vor dem Gebäude befindlicher Kfz-Stellplatz gegen Gebühr, auf dem Grundstück der Eigentumswohnung zugeordneter, vervollständigt das reizvolle Angebot. Die Wohnung ist mit einer Gas-Etagenheizung ausgestattet. Die Miete versteht sich zuzüglich der Kosten für Gas, Wasser und Strom. Hierfür schließt der Mieter selbst Versorgungsverträge mit den jeweiligen Anbietern ab. Lassen Sie sich bei einer Besichtigung begeistern! Wir freuen uns auf Sie.

Provision für Käufer

Die Notar- und Grundbuchkosten sowie die Grunderwerbsnebenkosten sind vom Käufer zu tragen. Ebenso ist die Maklercourtage in Höhe von 2,98 % des Kaufpreises inkl. der gesetzlichen Mehrwertsteuer verdient und fällig mit Beurkundung des notariellen Kaufvertrages an die Fa. Mori Immobilien. Die Firma Mori Immobilien hat einen provisionspflichtigen Maklervertrag mit dem Verkäufer in gleicher Höhe abgeschlossen. Irrtum und Zwischenverkauf vorbehalten. Alle Angaben nach Aussagen des Verkäufers.

TypMaisonette
Etage1 von 2
Wohnfläche ca.96
Zimmer2
Schlafzimmer2
Badezimmer1
Garage/ StellplatzAußenstellplatz