Zum Kaufen
Provisionsfrei-Gepflegtes freistehendes EFH mit Wellnessbereich u.v.m. in Familienfreundlicher Lage
Dieses Objekt ist ein Referenzobjekt. Es steht nicht zur Verfügung.






































Inserat Details
Lage
Das Haus befindet sich in einer ruhigen und Naturnahen Wohnlage direkt am Ortsrand von Stein bei Fürth. Stein selbst ist eine von Natur geprägte Stadt und ländlich gelegen. Das Steiner Stadtzentrum ist in wenigen Autominuten zu erreichen. Die Bushaltestelle ist 450 m entfernt. Von der U Bahnstation in Röthenbach West fahren Sie, ohne umzusteigen, in 30 Minuten mit der U2 in Nürnberg ein, mit der S4 in 19 Minuten. Über die B14 zur Südwesttangente besteht eine sehr gute Anbindung an das Autobahnnetz. Stein selbst bietet eine gute Infrastruktur mit vielen Einkaufsmöglichkeiten sowie Ärzten, Apotheken, Banken, der Stadtverwaltung und eine Vielfalt an Gastronomie. Auch das Röthenbacher Einkaufszentrum ist gut erreichbar. Ein reichhaltiges Freizeitangebot wird Ihnen geboten durch das nahe Erlebnis- und Thermalbad Palm Beach, dies sorgt für Spaß, Spannung und Action für Groß und Klein. Kindergarten, Grund- und Hauptschule, Gymnasium und div. Sportvereine mit tollen Angeboten sind schnell erreichbar. Stein ist die Stadt der Gegensätze. Neben dem Schloss Faber-Castell gibt es hier die Arbeitersiedlung und große Industrieanlagen mit Weltruhm. Als Bindeglied zwischen den Vorzügen unverfälschter Natur und den Angeboten des Ballungsraumes besitzt die Stadt einen hohen Wohn- und Freizeitwert. Fachwerkhäuser, die alte Kirche aber auch das Freizeitparadies "Palm Beach" laden immer wieder zu einem Besuch der Gemeinde ein. Wer Stein zu Fuß erkundet, wird feststellen, dass die "Stadt der Bleistifte" weit mehr ist, als der erste Blick beim Durchfahren vermuten lässt.
Beschreibung
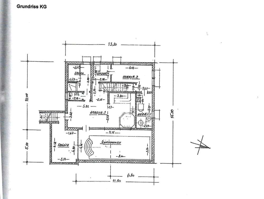
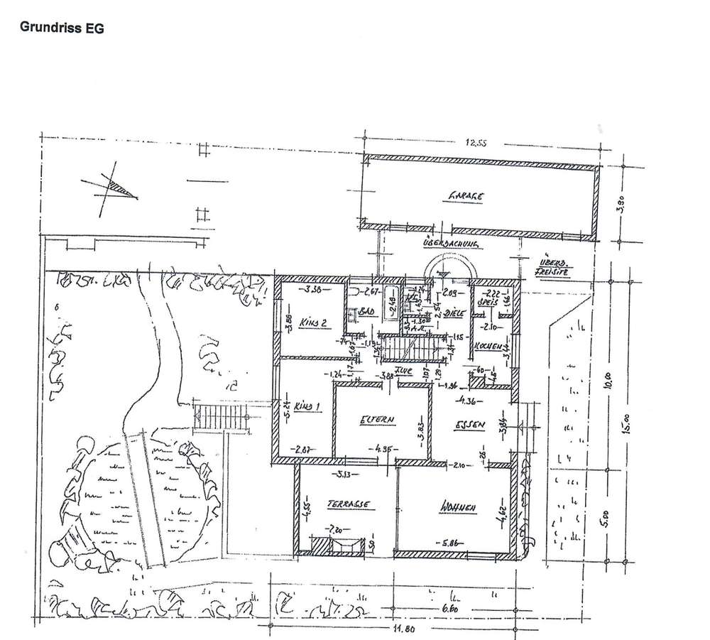
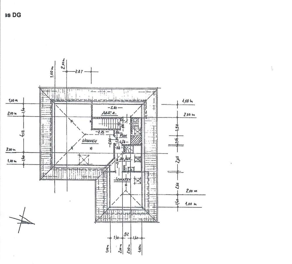
Diese ausgesprochen, moderne und außergewöhnliche Immobilie mit Doppelgarage, steht in Ortsrandlage von Stein b. Fürth, eingebettet auf einem ca. 780 m² großen Grundstück. Dieses freistehende Architektenhaus aus dem Jahr 1980 (fertigstellung) versprüht Charme und einen Hauch von Exklusivität. Es bietet alle Möglichkeiten und genügend Freiraum für ein schönes Zuhause. Die Dachkonstruktion mit anthrazit farbiger Ziegeleindeckung bietet einen optisch gelungenen Kontrast zur Klinkerfassade und den doppelt verglasten Fenstern. Schon beim Betreten des Grundstücks ist zu erkennen, dass hier mit viel Liebe zum Detail gearbeitet wurde. Das Erdgeschoss verfügt über eine großzügige Wohnfläche, die sich auf ein Entree mit Gäste-WC und Schrankgarderobe, die Küche mit anschließender Speisekammer und den Wohn-/ Essbereich aufteilt. Das praktische Arbeitszimmer, sowie ein Schlafzimmer, ein Ankleidezimmer und das Tageslichtbad mit vervollständigt das Raumangebot auf dieser Ebene. Ein Teil der Fußböden im Erdgeschoss sind mit Marmor belegt. Das Schlaf-/sowie Arbeitszimmer und das Ankleidezimmer verfügen über Teppichböden. Der Boden und die Wandflächen im Bad sind mit Granitfliesen gefliest. Die Raumhoch gefliesten Wände werden durch eine anspruchsvolle Bordüre hervorgehoben. Die Küche, versehen mit einer Einbauküche, bietet einen wundervollen Weitblick aus dem Küchenfenster über die angrenzenden Felder. Der Essbereich neben der Küche besitzt einen Ausgang auf eine der drei vorhandenen Außenterrassen. Der Übergang vom Essbereich hin zum Wohnzimmer ist offen gehalten. Das helle Wohnzimmer ist ein Raum für Kommunikation und Geselligkeit. Über eine Terrassentüre gelangen Sie auf die zweite große Terrasse des Hauses mit Blick in den Garten. Hier werden so manche tolle Feste für die ganze Familie aber auch für Gäste stattfinden können. Ein gemauerter Räucherofen mit zusätzlichem Grill sorgt für so manche Leckerbissen. In den wunderschönen Garten mit Fischteich und Wasserlauf und verschiedenen Sitzecken können sie nach einem anstrengenden Arbeitstag die Seele einfach baumeln lassen und neue Kraft tanken. Im Obergeschoss des Hauses befinden sich ein Schlafzimmer ein weiteres Wohnzimmer, ein offenes Duschbad und ein Abstellraum. Eine kleine Pantry Küche könnte hier gestellt werden. Das helle Souterrain, erreichbar über eine Treppe aus Travertin Marmor, verfügt über einen Schwimmbadbereich mit Ausgang zur Außenterrasse, einen Wellnessbereich mit Bar, Sauna und Whirlpool sowie Duschbad und separates WC. Der Whirlpool könnte über eine separate Steuerung in der Wand gesteuert werden. Der Wellnessbereich verfügt über einen eigenen Ausgang hinaus auf die Blick- und Windgeschützte Außenterrasse. Dieser Bereich ist auch über den Garten erreichbar. Der restliche Teil des Kellers teilt sich in die klassischen Kellerräume mit Abstellfläche und Haustechnik auf. Der Swimmingpool von ca.8,00 m x 3,70 m ist wartungsfrei. Die Warmwasserauf-bereitung wird durch die Solaranlage auf dem Dach unterstützt. Das gesamte UG verfügt über eine Fußbodenheizung, die hier für kuschlige Wohlfühltemperatur sorgt. Ruhe und gemütliche Stunden werden ihnen im Spa-Bereich sicher sein. Alle Fenster sind mit einer Zweifachverglasung ausgestattet. Die Fenster im Erdgeschoss und Souterrain besitzen Rollläden, teilweise sogar elektrisch ausgeführt. Maximaler Wohlfühl-Komfort entsteht durch die im gesamten Erdgeschoss verlegte Fußbodenheizung. Die in jedem Raum per Funk steuerbar ist. Die Heizungsanlage inkl. Brauchwasserspeicher wurde 2014 komplett erneuert. Hier erwartet Sie ein individuell geplantes und mit viel Liebe fürs Detail durchdachte Haus