Zu Mieten

Provisionsfrei***TOP LAGE***Gewerbe-oder Bürofläche in zentraler Lage

Dieses Objekt ist ein Referenzobjekt. Es steht nicht zur Verfügung.

PropertyFrontansicht Titel.-JPG
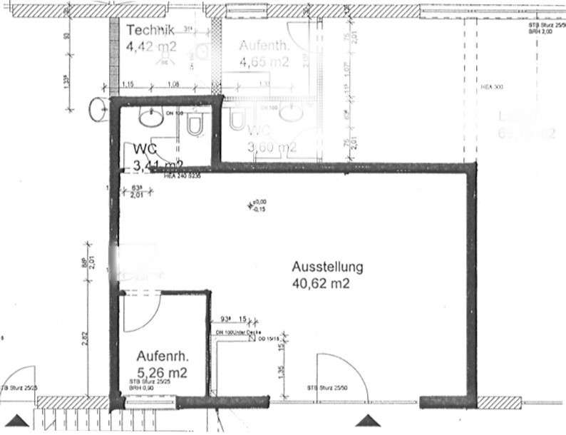
PropertyEG. Grundriss. jpg
1
2

Inserat Details

Lage

Nierstein - Riesling City - ist eine typische Weinbaugemeinde, deren Entstehung sich bis zu den Römern zurückverfolgen lässt. Nierstein liegt in Rheinhessen am Rhein, zwischen Mainz und Worms. Nachbargemeinden sind Oppenheim, Dienheim, Dexheim, und Nackenheim Der historische Ort bietet viel Abwechslung mit seinen gastronomischen Betrieben, Straußwirtschaften und Gutsschänken. Seine herrliche Lage am Rhein mit den ausgezeichneten Weinlagen „ Am Roten Hang „ lädt zum Wandern und Radfahren geradezu ein. Wohnen und arbeiten Sie in einem Ort, den viele nur als Ferienziel kennen lernen. Idealen Verkehrsanbindungen: Bahnhof an der Strecke Mainz-Mannheim mit zahlreichen Zügen nach Mainz- Wiesbaden und in Richtung Worms- Ludwigshafen- Mannheim im “Rheinland-Pfalz-Takt”; Über B 9 und B 420 Anschluss an das Autobahnnetz (A60, 61, 63) Mit der Rheinfähre Richtung Darmstadt (15 km), Zum Flughafen Frankfurt (40 km) Mit dem Auto erreichen Sie, über die B9, die Autobahnen Richtung Frankfurt, Mainz und Wiesbaden in wenigen Minuten.

AdresseFreyburger Allee 00
StadtNierstein

Beschreibung

Mit diesem Geschäft befinden sie sich in erstklassiker Einkaufslage von Nierstein. Egal welcher Bestimmung sie diesem Laden geben, er wird auf jedenfall gesehen werden. Er eignet sich auch als Büro oder Verkaufsfläche für Blumen, Dekoartikel, Kinderkleidung etc

Provision für Käufer

Die Notar- und Grundbuchkosten sowie die Grunderwerbsnebenkosten sind vom Käufer zu tragen. Ebenso ist die Maklercourtage in Höhe von 2,98 % des Kaufpreises inkl. der gesetzlichen Mehrwertsteuer verdient und fällig mit Beurkundung des notariellen Kaufvertrages an die Fa. Mori Immobilien. Die Firma Mori Immobilien hat einen provisionspflichtigen Maklervertrag mit dem Verkäufer in gleicher Höhe abgeschlossen. Irrtum und Zwischenverkauf vorbehalten. Alle Angaben nach Aussagen des Verkäufers.

Bezugsfrei ab