Zu Mieten
***Super Lage***Gewerbefläche im Altstadtbereich zu verkaufen
Dieses Objekt ist ein Referenzobjekt. Es steht nicht zur Verfügung.









Inserat Details
Lage
Oppenheim, eine reizvolle und gemütliche Stadt, die Beschaulichkeit bewahrt hat, mit schönen Gassen und Fachwerkhäusern, mit Treppengassen und trauten Winkeln, mit unterirdischen Gängen und Gewölben, dem "Historischen Kellerlabyrinth", mit seinen Weingütern und Kellern und der stattlichen Ruine Landskrone. Oppenheim und seine idealen Verkehrsanbindungen: Bahnhof an der Strecke Mainz-Mannheim mit zahlreichen Zügen nach Mainz- Wiesbaden und in Richtung Worms- Ludwigshafen- Mannheim im "Rheinland-Pfalz-Takt"; Über B 9 und B 420 Anschluss an das Autobahnnetz (A60, 61, 63) Mit der Rheinfähre Richtung Darmstadt (15 km), Zum Flughafen Frankfurt (40 km)
Beschreibung
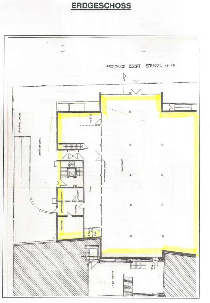
Das angebotene Objekt, welches wir Ihnen mit diesem Exposè näher bringen möchten, befindet sich im Erdgeschoss eines Wohn- und Ärztehauses. Dieses Gebäude wurde im Jahr 1976 erbaut. Die Schaufensterfront der 780 m² großen Ladenfläche, nimmt die komplette Hausbreite des Gebäudes in Anspruch. Im Erdgeschoss befinden sich die Herren und Damen Toiletten, Lager- oder Mitarbeiterräume sowie ein Kühlraum und ein Lastenaufzug, der auch ins UG fahren kann. Hier befindet sich ebenfalls eine Fläche von 320 m², diese kann als Lagerraum genutzt werden. Außer Lagerräume und zwei Kühlräume befinden sich im UG 2 WC Anlagen, ein Büroraum, der Heizungsraum und eine Hebebühne. Die Raumaufteilung unterliegt hier keiner Beschränkung.