Zu Mieten

Wohnen und arbeiten unter einem Dach: Wohnbüro mit Galerie in zentraler Lage

Dieses Objekt ist ein Referenzobjekt. Es steht nicht zur Verfügung.

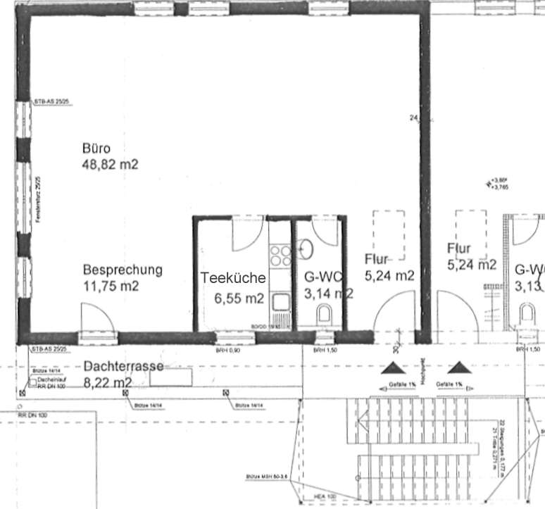
PropertyOG. Grundriss
PropertyEmpfang
PropertyArbeitsbereich
PropertyMusterbild
PropertyWohn_Essbereich
PropertyWohnzimmer
PropertyMusterbild
PropertyEmpfang MUster
PropertyGäste WC
PropertyEBK
PropertyEBK_
PropertyTreppenaufgang Muster
PropertyDuschbad
PropertyBad
PropertyDusch_Bad
PropertyGalerie Muster
PropertyAussenbereich
1
17

Inserat Details

Lage

Das Objekt befindet sich in zentraler Lage von Nierstein. Eine gute öffentliche Verkehrsanbindung ist gegeben. Einkaufsmöglichkeiten für Dinge des täglichen Bedarfs sind in wenigen Minuten erreichbar. Ebenso nah liegen Bushaltestelle und S-Bahn-Station. Der historische Ort bietet viel Abwechslung mit seinen gastronomischen Betrieben, Straußwirtschaften und Gutsschänken. Seine herrliche Lage am Rhein mit den ausgezeichneten Weinlagen „ Am Roten Hang „ lädt zum Wandern und Radfahren geradezu ein. Wohnen Sie in einem Ort, den viele nur als Ferienziel kennen lernen. Mit dem Auto erreichen Sie, über die B9, die Autobahnen Richtung Frankfurt, Mainz und Wiesbaden in wenigen Minuten. Mit dem Zug können Sie direkt zu den Mainzer Bahnhöfen gelangen. Mit dem Auto erreichen Sie, über die B9, die Autobahnen Richtung Frankfurt, Mainz und Wiesbaden in wenigen Minuten.

AdresseFreyburger Allee 00
StadtNierstein

Beschreibung

Wir möchten Ihnen heute eine außergewöhnliche Gewerbefläche mit Wohnmöglichkeit im Ortskern von Nierstein (Am Roßberg) vorstellen. Dieses Gewerbeobjekt grenzt an vielen Geschäften des täglichen Bedarfs an. Da es sich hier ausschließlich um gewerbliche Nutzung handelt kommt auf die Kaltmiete von 900,00 € noch die gesetzliche 19 % MwSt. hinzu. Im Gewerbe Objekt befinden sich im Erdgeschoss des Hauses, ein Sanitärgeschäft, ein Optiker, der auch Schmuck anbietet und ein Parkettstudio. Im OG erreichbar über die Außentreppe befindet sich eine Zahnarztpraxis und die frei werdende Gewerbe- bzw. Bürofläche. Die Räumlichkeiten könnten einer Vielzahl von neuen Verwendungsmöglichkeiten zugeführt werden wie z.B. Steuerberater Büro, Heilpraktiker Praxis, Logopädie Praxis, Pflegedienst Büro etc. . Haben Sie eine Idee oder eine neue Möglichkeit dann melden Sie sich bei uns. Die gesamten Innenflächen, im unteren sowie im Galeriebereich, sind mit Echtholzparkettböden ausgelegt. Die Galerie erreicht man über die Innentreppe, welche ebenfalls aus Holz gefertigt ist. Derzeit befindet sich oben ein Duschbad mit Waschmaschinenanschluss und Schlafbereich. Beheizt wir das Objekt über einer Gas-Zentralheizung. Das Objekt ist 2006 erbaut worden und somit in einen tadellosen Zustand. Sie könnten ab November 2016 die Räume beziehen. Die Stellwände könnten auf Wunsch, wenn nicht gewollt, wieder entfernt werden Die gezeigte Einbauküche ist im Angebot nicht enthalten, kann aber gegen eine Ablösesumme übernommen werden. Ein zugewiesener PKW-Außenstellplatz rundet das Angebot ab.

Provision für Käufer

Die Notar- und Grundbuchkosten sowie die Grunderwerbsnebenkosten sind vom Käufer zu tragen. Ebenso ist die Maklercourtage in Höhe von 2,98 % des Kaufpreises inkl. der gesetzlichen Mehrwertsteuer verdient und fällig mit Beurkundung des notariellen Kaufvertrages an die Fa. Mori Immobilien. Die Firma Mori Immobilien hat einen provisionspflichtigen Maklervertrag mit dem Verkäufer in gleicher Höhe abgeschlossen. Irrtum und Zwischenverkauf vorbehalten. Alle Angaben nach Aussagen des Verkäufers.

Bezugsfrei ab